|
Наши проекты
→
Проекты от 150 до 200 м2
→
Проект "Светлана"
Проект "Светлана" |
||||||||||||||||
|
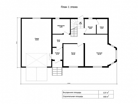
Краткое описание
Общая строительная площадь
160 м2
Внутренняя площадь
137 м2
Этажность
2 этажа
Высота потолков
1-го этажа - 2,8 м; 2-го этажа - 2,5 м
Предварительный расчет стоимости строительства дома
Опишите что хотите построить, мы рассчитаем и пришлем Вам смету Параметры дома
Описание проекта
Проект «Светлана» – данный проект канадского дома был разработан, что называется с «чистого листа» с учетом всех пожеланий заказчика, изготовлен на заводе группы компаний «ЭкоПан-НОВОСИБИРСК» и в июле 2013 года, отправлен двумя фурами в город Нижневартовск. Сборка дома производилась силами заказчика. Для того чтобы, рассчитать стоимость дома из сэндвич панелей «под ключ», нам необходимо знать, какие отделочные материалы Вы будете применять для внешней и внутренней отделки, а также какие внутренние инженерные сети и с какими характеристиками необходимо принимать для расчета. |
||||||||||||||||
уже более 350 домов в 15 регионах Сибири и Дальнего востока
|
Наш адрес.
630049 Новосибирская область
Телефоны: +7 (383) 28-48-111 город Новосибирск, улица Галущака, дом 2, бизнес центр "Два капитана", 5-ый подъезд, 3-ий этаж офис 3003. Почта: ooo-ecopan_nsc@mail.ru Сайт: www.ecopan.nsk.ru ОГРН 1125476163548 ИНН/КПП: 5406726410/540201001 |
Время работы: Пн-Пт - 10:00 - 18:00Сб-Вс - выходной |
Данный сайт носит исключительно информационный характер и не является публичной офертой, определяемой положениями ст.437 ГК РФ.
Для получения подробной информации о стоимости, пожалуйста, обращайтесь в офис компании.













