|
Наши проекты
→
Проекты от 150 до 200 м2
→
Проект "Счастье"
Проект "Счастье" |
||||||||||||||||
|
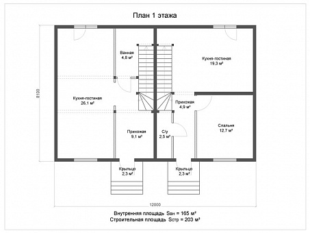
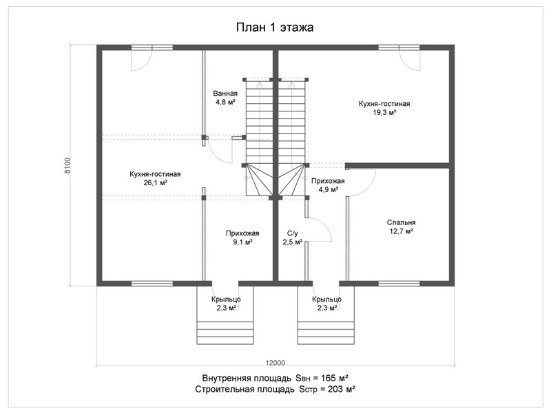
Краткое описание
Общая строительная площадь
203 м2
Внутренняя площадь
164 м2 (по 82 м2 на каждую квартиру)
Этажность
2 этажа
Высота потолков
1 этажа - 2,8 м; 2 этажа - 2,5 м
Предварительный расчет стоимости строительства дома
Опишите что хотите построить, мы рассчитаем и пришлем Вам смету Параметры дома
Описание проекта
Индивидуальный жилой дом на 2 квартиры, построенный по проекту «Счастье» в два этажа, идеальный вариант для тех, кто хочет дружить семьями. Изысканное и в то же время лаконичное архитектурное решение подчеркнет ваш вкус и позволит вам собираться вечером семьями на террасе и делиться впечатлениями о прошедшем дне. Чтобы построить дом под ключ из сэндвич панелей, особенно если речь идет о площади 150-200 м2, нет никакой необходимости ждать годы, пока возведут ленточный фундамент, и поставят стены из камня. Загородный дом – должен радовать владельцев своим уютом уже спустя 3-4 месяца после разработки первых эскизов! И мы как держатели технологии «Экопан» можем это для Вас осуществить! |
||||||||||||||||
уже более 350 домов в 15 регионах Сибири и Дальнего востока
|
Наш адрес.
630049 Новосибирская область
Телефоны: +7 (383) 28-48-111 город Новосибирск, улица Галущака, дом 2, бизнес центр "Два капитана", 5-ый подъезд, 3-ий этаж офис 3003. Почта: ooo-ecopan_nsc@mail.ru Сайт: www.ecopan.nsk.ru ОГРН 1125476163548 ИНН/КПП: 5406726410/540201001 |
Время работы: Пн-Пт - 10:00 - 18:00Сб-Вс - выходной |
Данный сайт носит исключительно информационный характер и не является публичной офертой, определяемой положениями ст.437 ГК РФ.
Для получения подробной информации о стоимости, пожалуйста, обращайтесь в офис компании.












