|
Наши проекты
→
Проекты от 150 до 200 м2
→
Проект "Енисей"
Проект "Енисей" |
||||||||||||||||
|
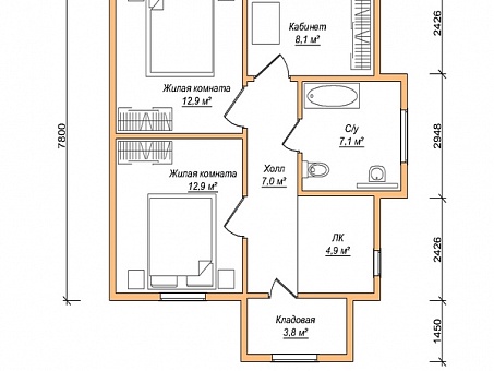
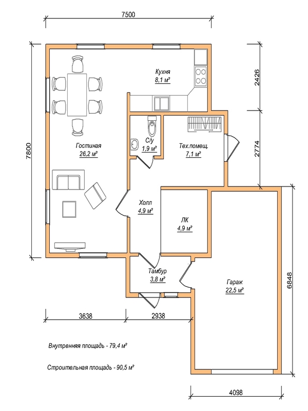
Краткое описание
Общая строительная площадь
156 м2
Внутренняя площадь
136 м2
Этажность
1 этаж + жилая мансарда
Высота потолков
1-го этажа - 2,8 м; мансарда - 2,5 м, у скатов - 1,24 м
Предварительный расчет стоимости строительства дома
Опишите что хотите построить, мы рассчитаем и пришлем Вам смету Параметры дома
Описание проекта
Проект «Енисей» пользуется популярностью во многих регионах нашей страны. Города, где особенно проявляют интерес к проекту дома из сэндвич панелей Омск, Томск, Кемерово, Красноярск, Барнаул, Горно-Алтайск. Особенность данного проекта – это практичный набор помещений, рациональные планировочные решения. |
||||||||||||||||
Группа компаний «ЭкоПан - Новосибирск»
уже более 350 домов в 15 регионах Сибири и Дальнего востока
уже более 350 домов в 15 регионах Сибири и Дальнего востока
|
Наш адрес.
630049 Новосибирская область
Телефоны: +7 (383) 28-48-111 город Новосибирск, улица Галущака, дом 2, бизнес центр "Два капитана", 5-ый подъезд, 3-ий этаж офис 3003. Почта: ooo-ecopan_nsc@mail.ru Сайт: www.ecopan.nsk.ru ОГРН 1125476163548 ИНН/КПП: 5406726410/540201001 |
Время работы: Пн-Пт - 10:00 - 18:00Сб-Вс - выходной |
Все права защищены © 2009 - 2026 ГК Экопан-Новосибирск
Данный сайт носит исключительно информационный характер и не является публичной офертой, определяемой положениями ст.437 ГК РФ.
Для получения подробной информации о стоимости, пожалуйста, обращайтесь в офис компании.












