|
Наши проекты
→
Проекты от 150 до 200 м2
→
Проект "Орион"
Проект "Орион" |
||||||||||||||||
|
Краткое описание
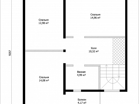
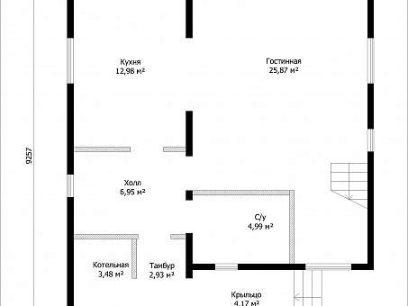
Общая строительная площадь
150 м2
Внутренняя площадь
105 м2
Этажность
1 этаж + жилая мансарда
Высота потолков
1-го этажа - 2,8 м; мансарда - 2,5 м, у скатов - 1,4 м
Предварительный расчет стоимости строительства дома
Опишите что хотите построить, мы рассчитаем и пришлем Вам смету Параметры дома
Описание проекта
Индивидуальный жилой дом с мансардой по проекту «Орион» – авторский проект нашего конструктора. Проект учитывает пожелания о просторных помещениях, а привлекательная архитектура создает нестандартный образ, который обязательно найдет своего хозяина. Поэтому, если вы рассматриваете строительство из сэндвич панелей быстровозводимые дома – один из вариантов решения Вашего жилищного вопроса и вам обязательно нужно обратить внимание на этот проект. Любые изменения в проект, если не планируете увеличивать общую площадь, будут внесены бесплатно! |
||||||||||||||||
уже более 350 домов в 15 регионах Сибири и Дальнего востока
|
Наш адрес.
630049 Новосибирская область
Телефоны: +7 (383) 28-48-111 город Новосибирск, улица Галущака, дом 2, бизнес центр "Два капитана", 5-ый подъезд, 3-ий этаж офис 3003. Почта: ooo-ecopan_nsc@mail.ru Сайт: www.ecopan.nsk.ru ОГРН 1125476163548 ИНН/КПП: 5406726410/540201001 |
Время работы: Пн-Пт - 10:00 - 18:00Сб-Вс - выходной |
Данный сайт носит исключительно информационный характер и не является публичной офертой, определяемой положениями ст.437 ГК РФ.
Для получения подробной информации о стоимости, пожалуйста, обращайтесь в офис компании.












