|
Наши проекты
→
Проекты от 150 до 200 м2
→
Проект "Омич"
Проект "Омич" |
||||||||||||||||
|
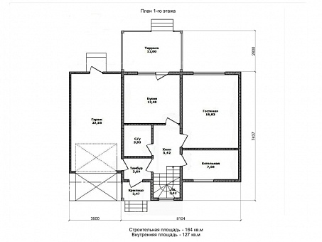
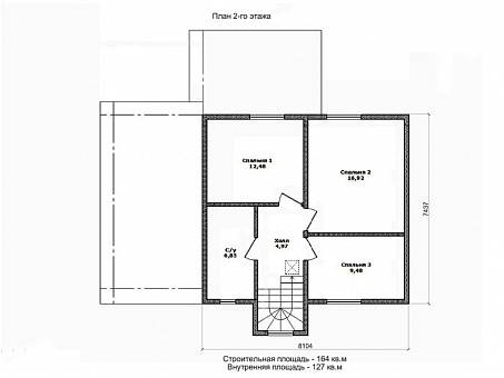
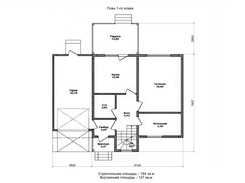
Краткое описание
Общая строительная площадь
164 м2
Внутренняя площадь
127 м2
Этажность
1 этаж + жилая мансарда
Высота потолков
1-го этажа - 2,5 м; мансарда: потолок - 2,5 м, у скатов - 1,5 м
Предварительный расчет стоимости строительства дома
Опишите что хотите построить, мы рассчитаем и пришлем Вам смету Параметры дома
Описание проекта
Сборные дома из сэндвич панелей построены во многих регионах Сибирского федерального округа. Проект «Омич», является одним из первых канадских домов, построенных на территории Омской области. Основные отличительные черты проекта «Омич» – гараж для одного автомобиля и веранда. Проект «Омич» является уменьшенным по площади вариантом проекта «Петрович». |
||||||||||||||||
Группа компаний «ЭкоПан - Новосибирск»
уже более 350 домов в 15 регионах Сибири и Дальнего востока
уже более 350 домов в 15 регионах Сибири и Дальнего востока
|
Наш адрес.
630049 Новосибирская область
Телефоны: +7 (383) 28-48-111 город Новосибирск, улица Галущака, дом 2, бизнес центр "Два капитана", 5-ый подъезд, 3-ий этаж офис 3003. Почта: ooo-ecopan_nsc@mail.ru Сайт: www.ecopan.nsk.ru ОГРН 1125476163548 ИНН/КПП: 5406726410/540201001 |
Время работы: Пн-Пт - 10:00 - 18:00Сб-Вс - выходной |
Все права защищены © 2009 - 2026 ГК Экопан-Новосибирск
Данный сайт носит исключительно информационный характер и не является публичной офертой, определяемой положениями ст.437 ГК РФ.
Для получения подробной информации о стоимости, пожалуйста, обращайтесь в офис компании.












