|
Наши проекты
→
Проекты от 150 до 200 м2
→
Проект "Неаполь"
Проект "Неаполь" |
||||||||||||||||
|
Краткое описание
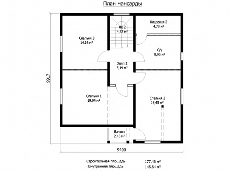
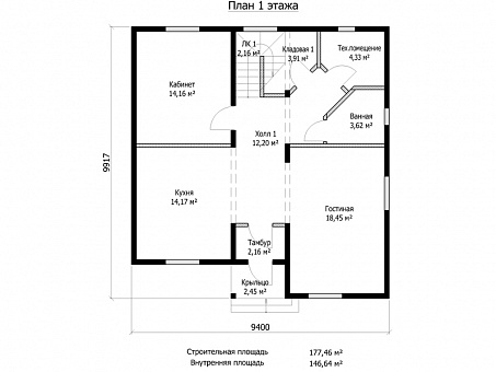
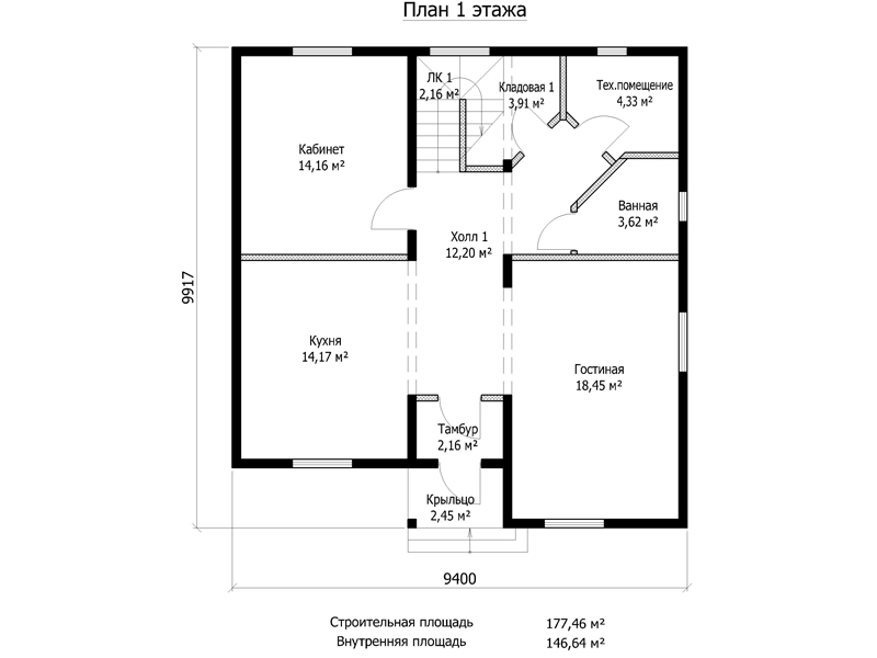
Общая строительная площадь
178 м2
Внутренняя площадь
147 м2
Этажность
1 этаж + мансарда
Высота потолков
1-го этажа - 2,8 м; мансарда: потолок - 2,8 м, у скатов - 1,4 м
Предварительный расчет стоимости строительства дома
Опишите что хотите построить, мы рассчитаем и пришлем Вам смету Параметры дома
Описание проекта
Индивидуальный жилой дом с мансардой по проекту «Неаполь» – авторский проект нашего конструктора. Проект выполнен с полным набором внутренних стен и перегородок из сип-панелей, чтобы узнать, как уменьшить стоимость проекта наберите наши контактные номера в разделе контакты. Заводское изготовление домов из сэндвич панелей по технологии «Экопан» это наше неоспоримое преимущество в сравнении с конкурентами. В таком виде вы получаете на стройплощадке не просто набор стройматериалов без первичной обработки, а конструктор в виде набора деталей, которые на стройплощадке останется только собрать между собой на монтажную пену и саморезы. |
||||||||||||||||
уже более 350 домов в 15 регионах Сибири и Дальнего востока
|
Наш адрес.
630049 Новосибирская область
Телефоны: +7 (383) 28-48-111 город Новосибирск, улица Галущака, дом 2, бизнес центр "Два капитана", 5-ый подъезд, 3-ий этаж офис 3003. Почта: ooo-ecopan_nsc@mail.ru Сайт: www.ecopan.nsk.ru ОГРН 1125476163548 ИНН/КПП: 5406726410/540201001 |
Время работы: Пн-Пт - 10:00 - 18:00Сб-Вс - выходной |
Данный сайт носит исключительно информационный характер и не является публичной офертой, определяемой положениями ст.437 ГК РФ.
Для получения подробной информации о стоимости, пожалуйста, обращайтесь в офис компании.















