|
Наши проекты
→
Проекты от 150 до 200 м2
→
Проект "Милан"
Проект "Милан" |
||||||||||||||||
|
Краткое описание
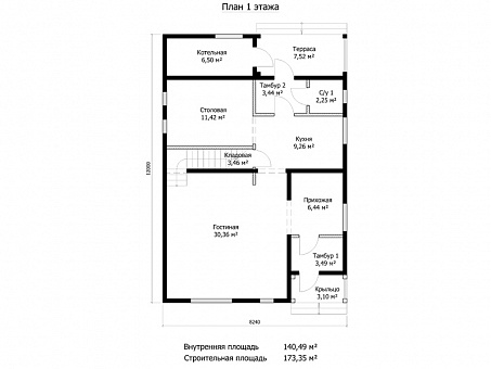
Общая строительная площадь
173 м2
Внутренняя площадь
140 м2
Этажность
2 этажа
Высота потолков
1-го этажа - 2,8 м; 2-го этажа - 2,5 м
Предварительный расчет стоимости строительства дома
Опишите что хотите построить, мы рассчитаем и пришлем Вам смету Параметры дома
Описание проекта
Индивидуальный двухэтажный жилой дом по проекту «Милан» – авторский проект нашего конструктора. В нем мы постарались привнести архитектурные решения и придать внешний вид, которые навеивали бы Вам атмосферу итальянского города периода эпохи возрождения! Вообще частные дома из сэндвич панелей помогают решать самые смелые идеи. Это обусловлено тем, что сип-панели легки в обработке, а в установленном виде они представляют собой идеально гладкие стены и перекрытия, что позволит Вам проводить отделочные работ без предварительных подготовок, выравниваний и т.д. |
||||||||||||||||
уже более 350 домов в 15 регионах Сибири и Дальнего востока
|
Наш адрес.
630049 Новосибирская область
Телефоны: +7 (383) 28-48-111 город Новосибирск, улица Галущака, дом 2, бизнес центр "Два капитана", 5-ый подъезд, 3-ий этаж офис 3003. Почта: ooo-ecopan_nsc@mail.ru Сайт: www.ecopan.nsk.ru ОГРН 1125476163548 ИНН/КПП: 5406726410/540201001 |
Время работы: Пн-Пт - 10:00 - 18:00Сб-Вс - выходной |
Данный сайт носит исключительно информационный характер и не является публичной офертой, определяемой положениями ст.437 ГК РФ.
Для получения подробной информации о стоимости, пожалуйста, обращайтесь в офис компании.















