|
Наши объекты
→
Объекты 2022 года
→
Солнечный- Малиновая горка
Солнечный- Малиновая горка |
|
|
|
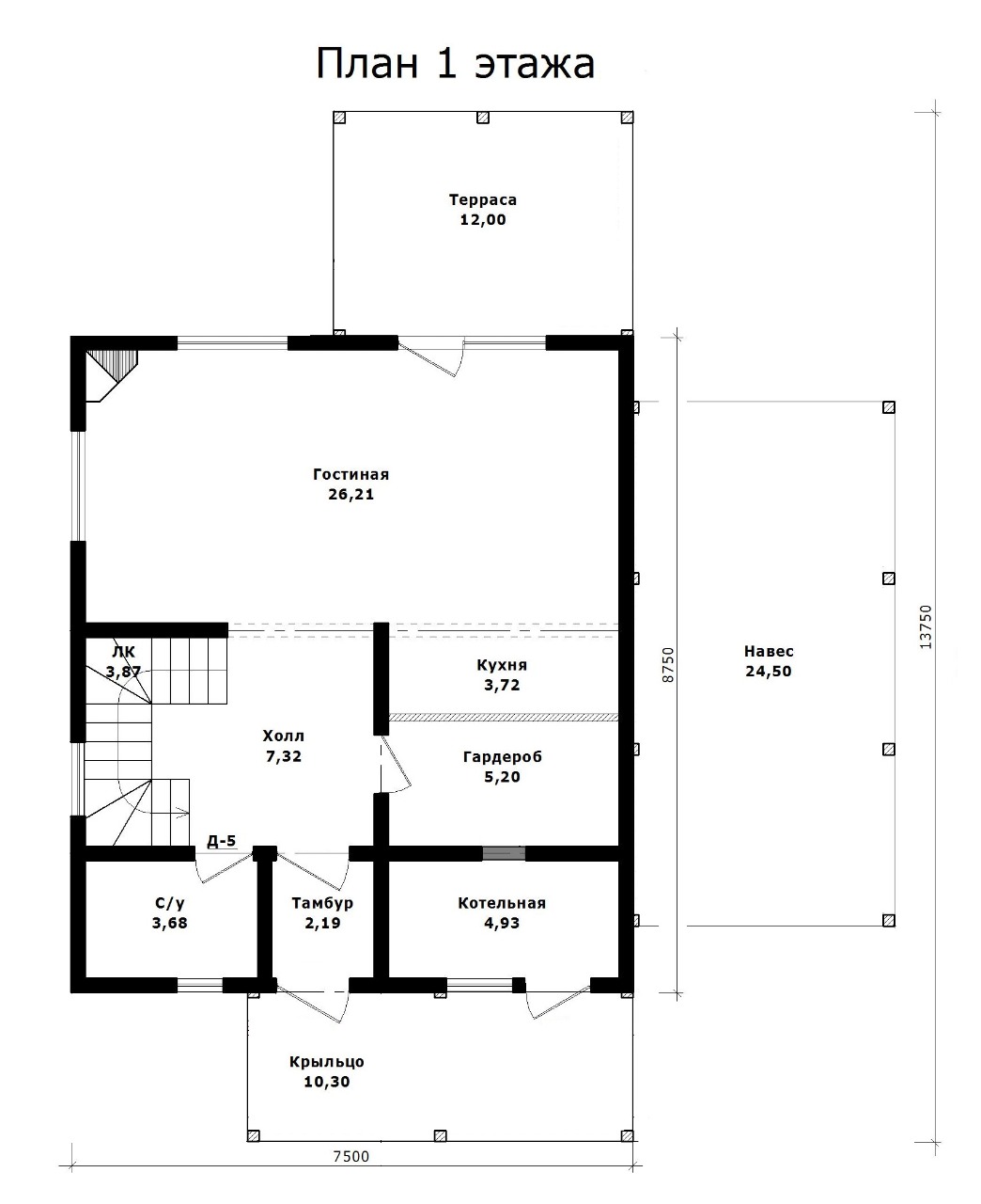
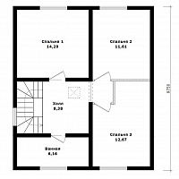
Визуализация
← увеличить фото →
← увеличить фото →
← увеличить фото →
← увеличить фото →
← увеличить фото →
← увеличить фото →
← увеличить фото →
← увеличить фото →
← увеличить фото →
← увеличить фото →
← увеличить фото → |
Группа компаний «ЭкоПан - Новосибирск»
уже более 350 домов в 15 регионах Сибири и Дальнего востока
уже более 350 домов в 15 регионах Сибири и Дальнего востока
|
Наш адрес.
630049 Новосибирская область
Телефоны: +7 (383) 28-48-111 город Новосибирск, улица Галущака, дом 2, бизнес центр "Два капитана", 5-ый подъезд, 3-ий этаж офис 3003. Почта: ooo-ecopan_nsc@mail.ru Сайт: www.ecopan.nsk.ru ОГРН 1125476163548 ИНН/КПП: 5406726410/540201001 |
Время работы: Пн-Пт - 10:00 - 18:00Сб-Вс - выходной |
Все права защищены © 2009 - 2026 ГК Экопан-Новосибирск
Данный сайт носит исключительно информационный характер и не является публичной офертой, определяемой положениями ст.437 ГК РФ.
Для получения подробной информации о стоимости, пожалуйста, обращайтесь в офис компании.




